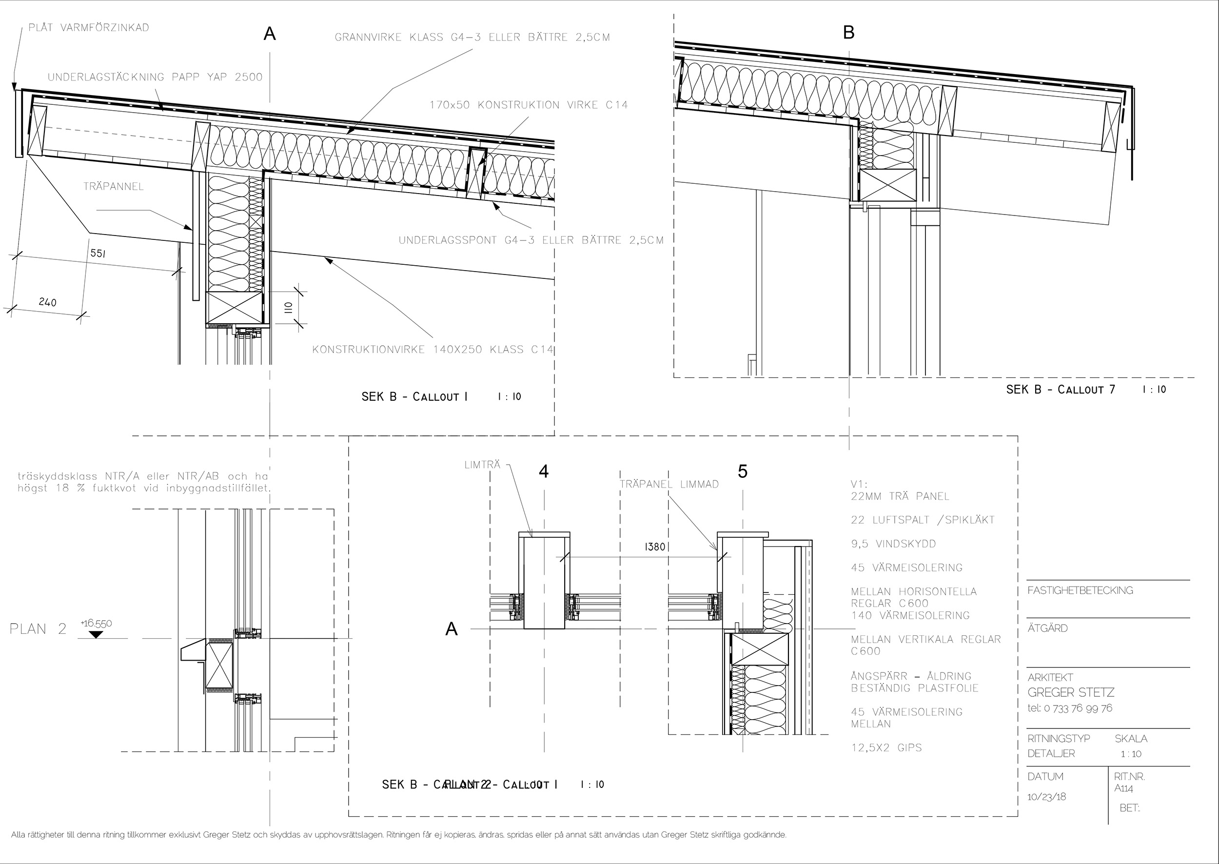
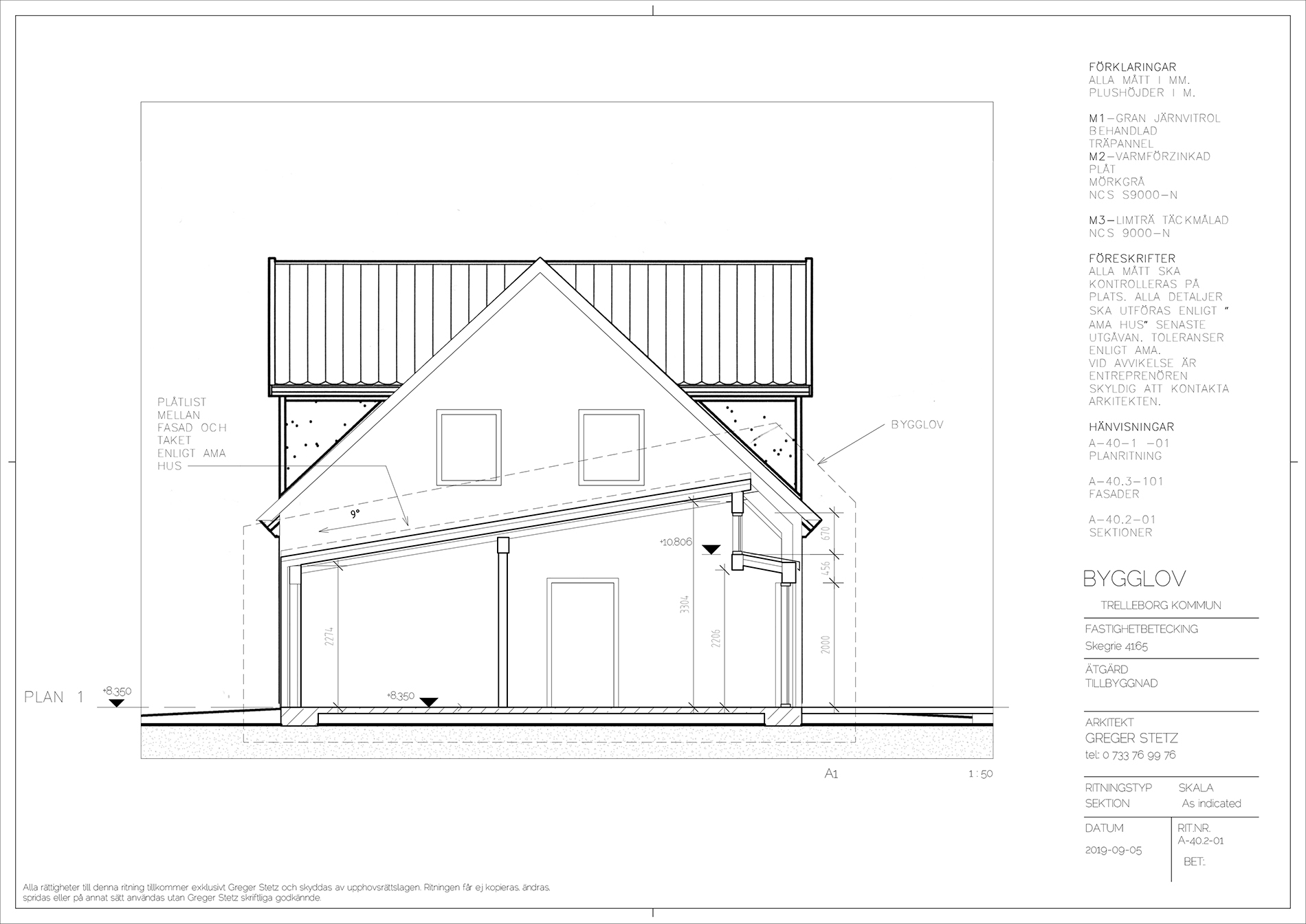
PERPETUUS KYRKA TILLBYGGNAD
PERPETUUS
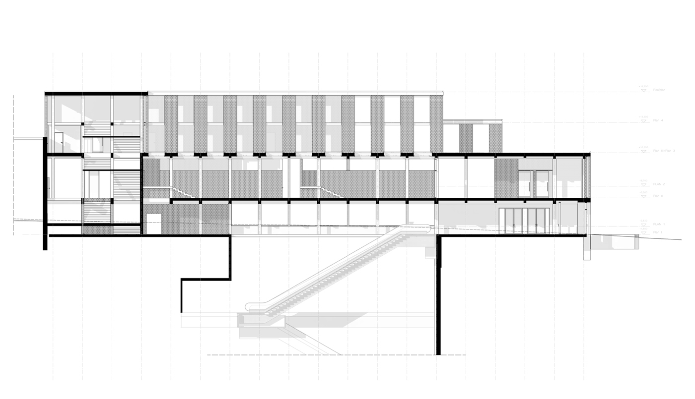
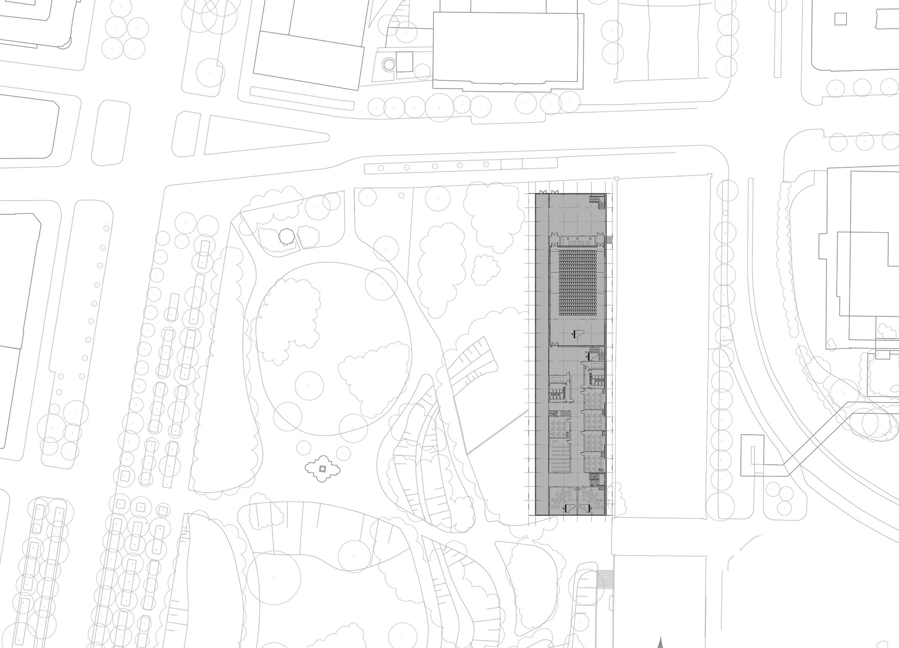
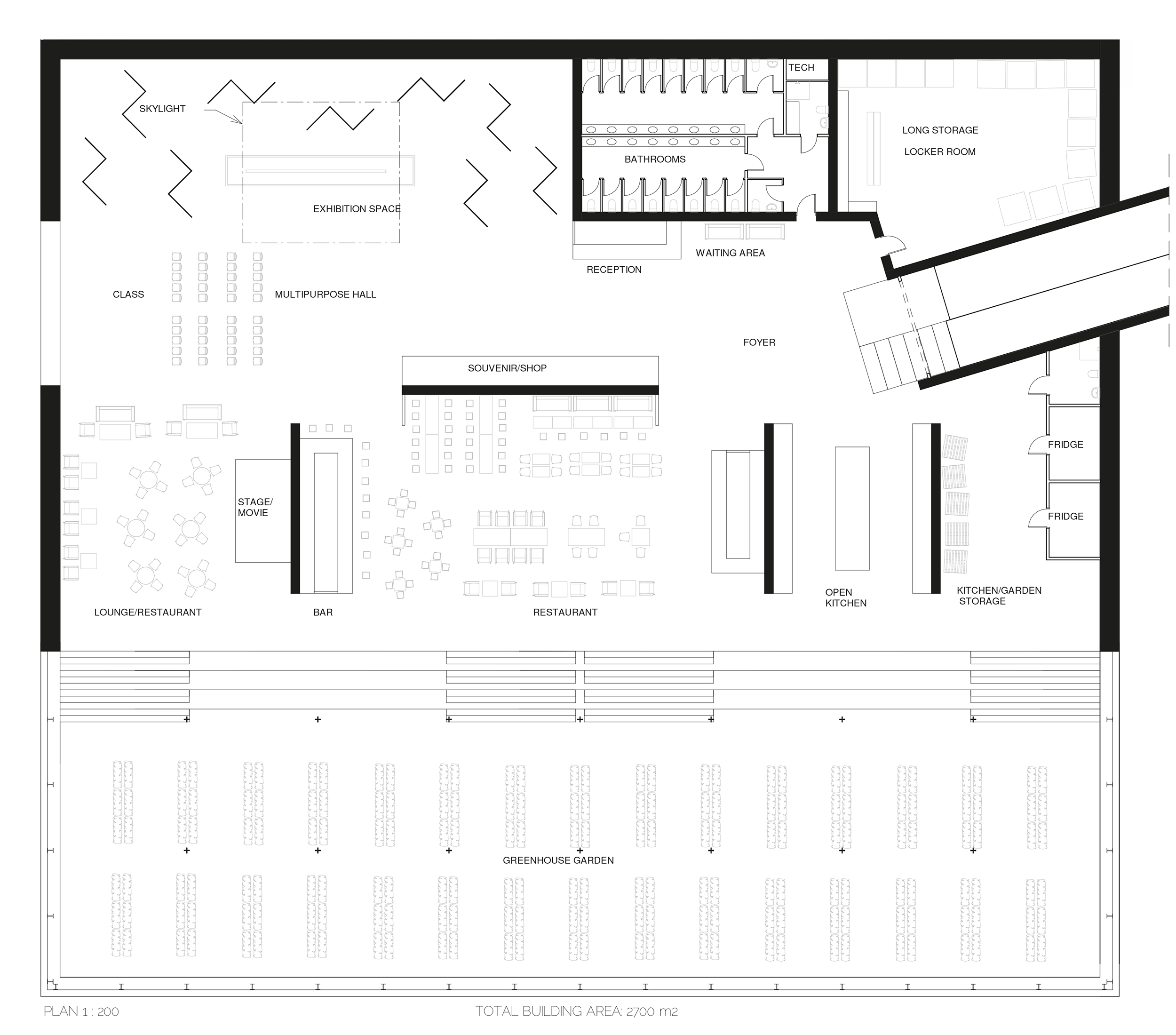
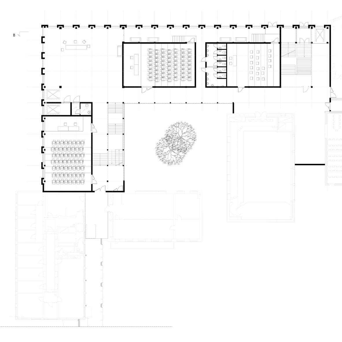
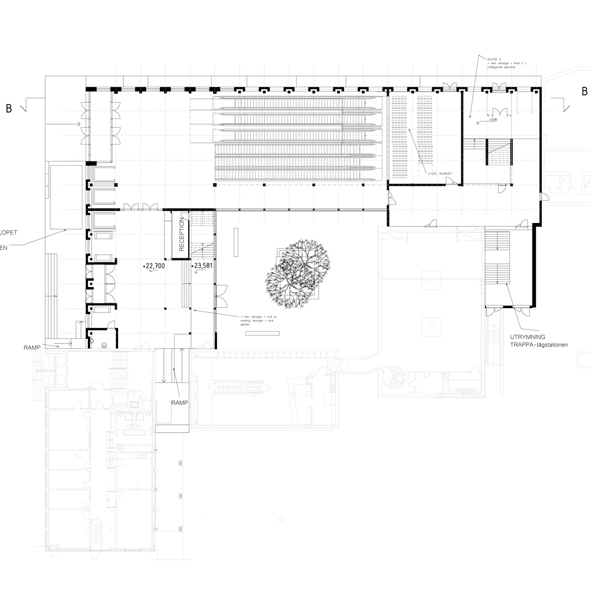
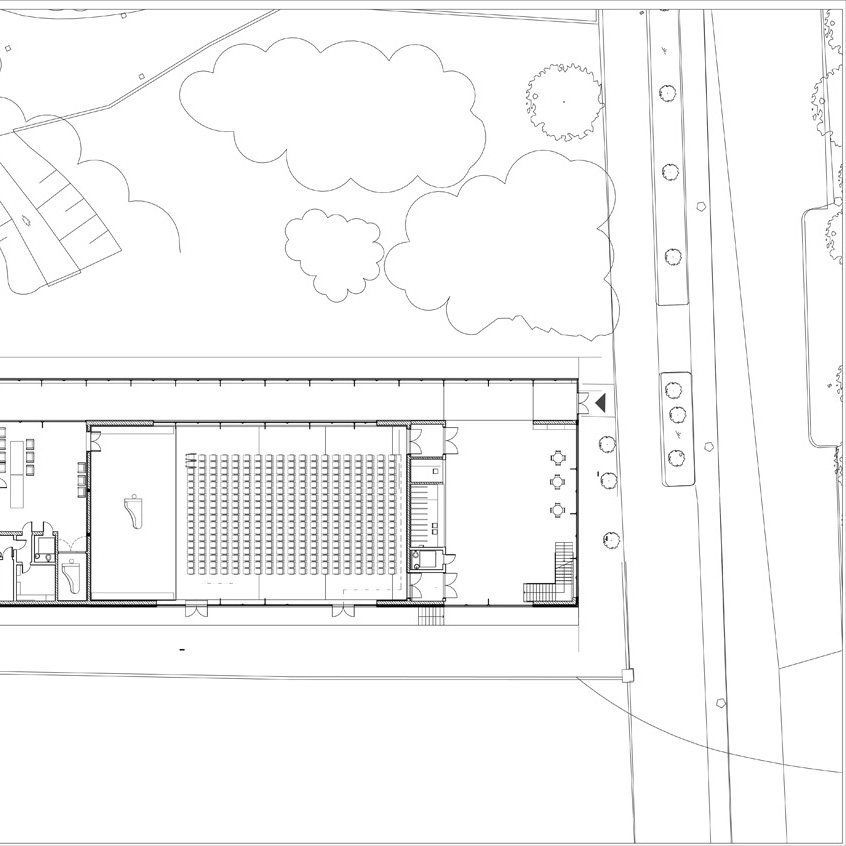
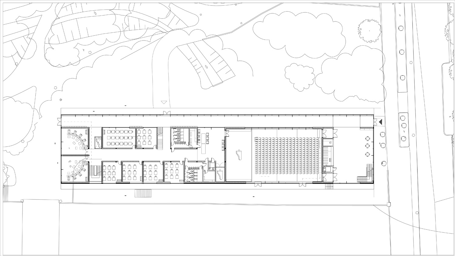
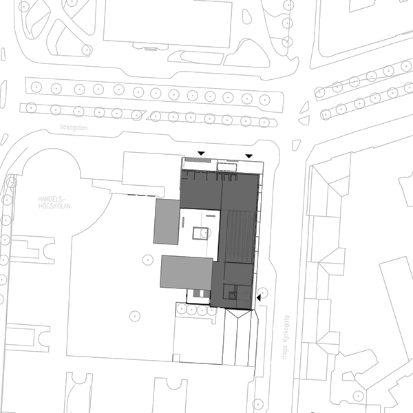
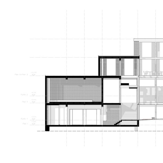
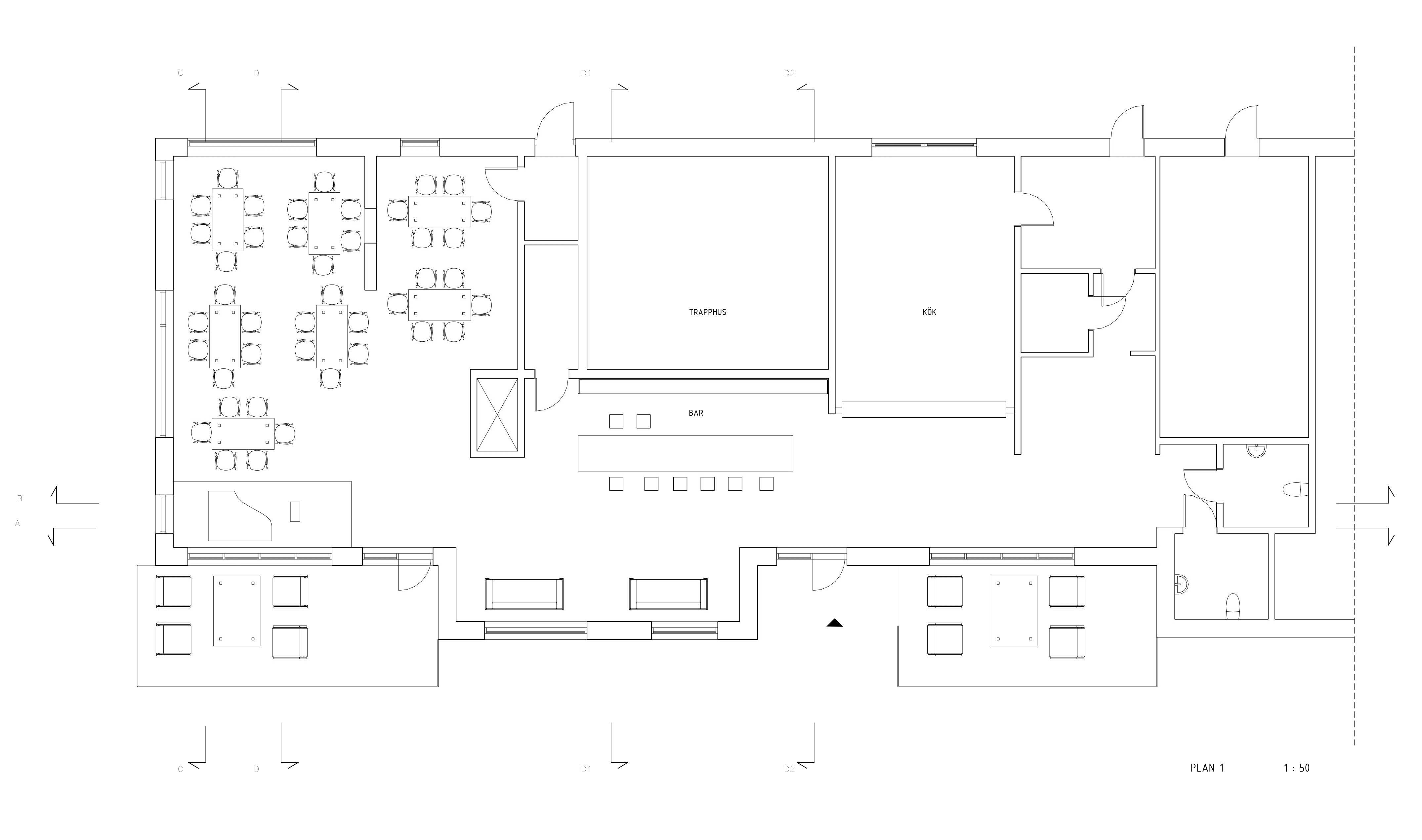
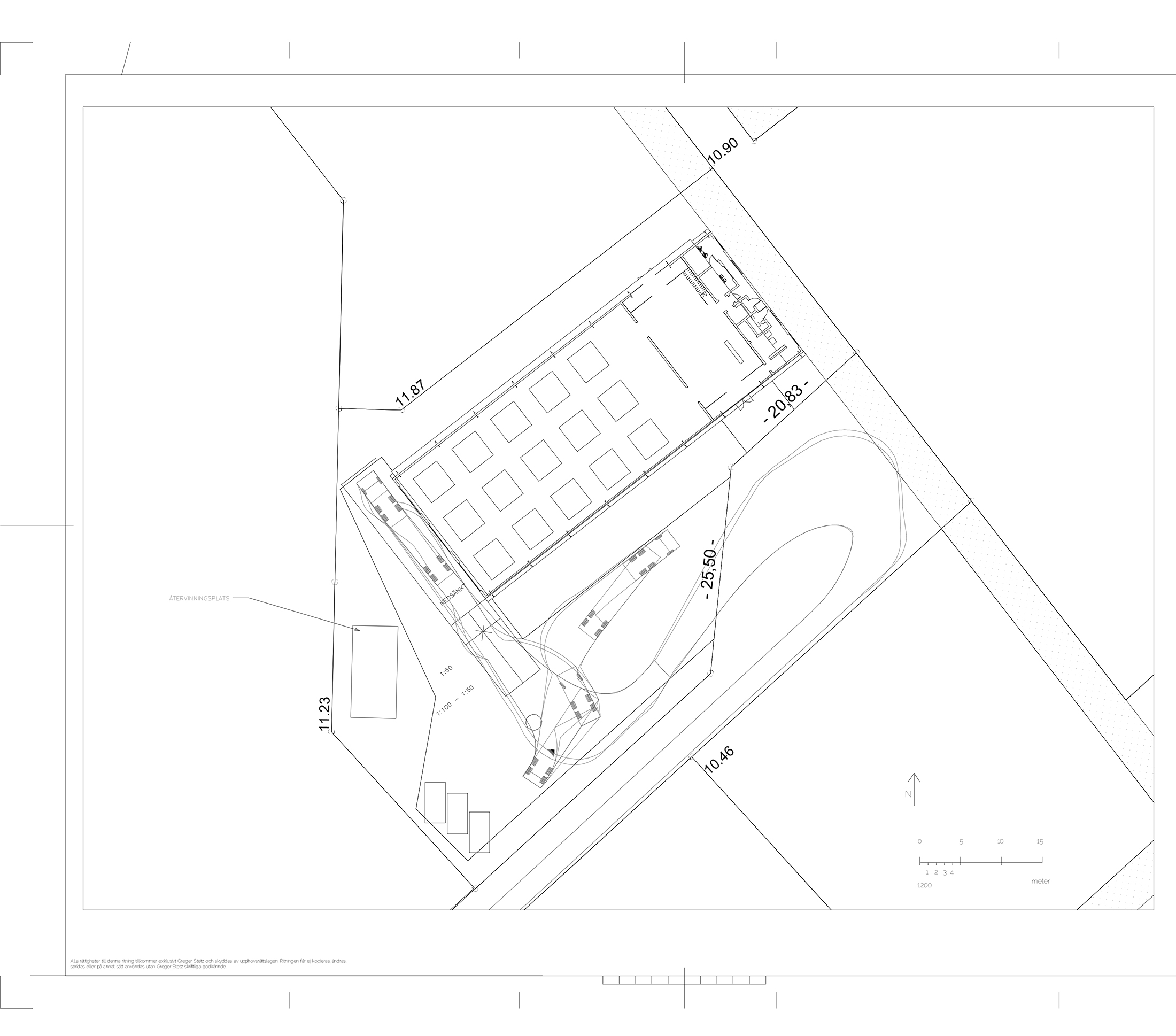
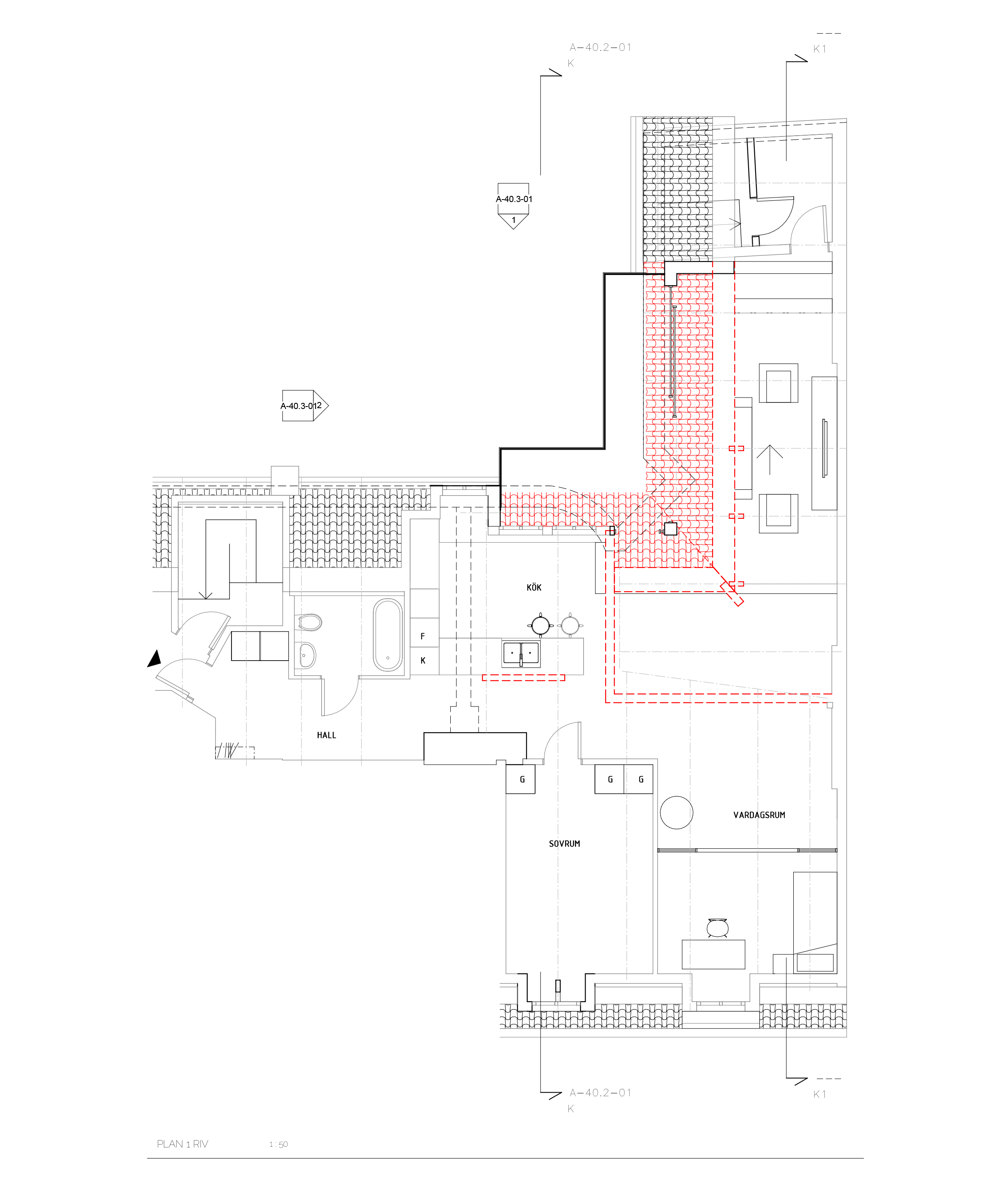
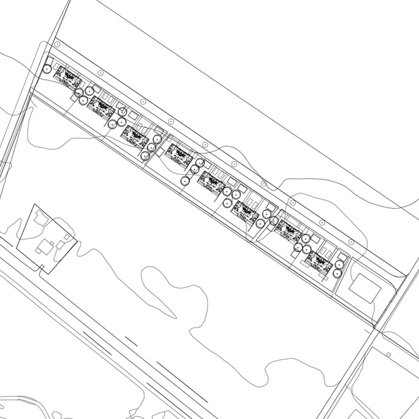
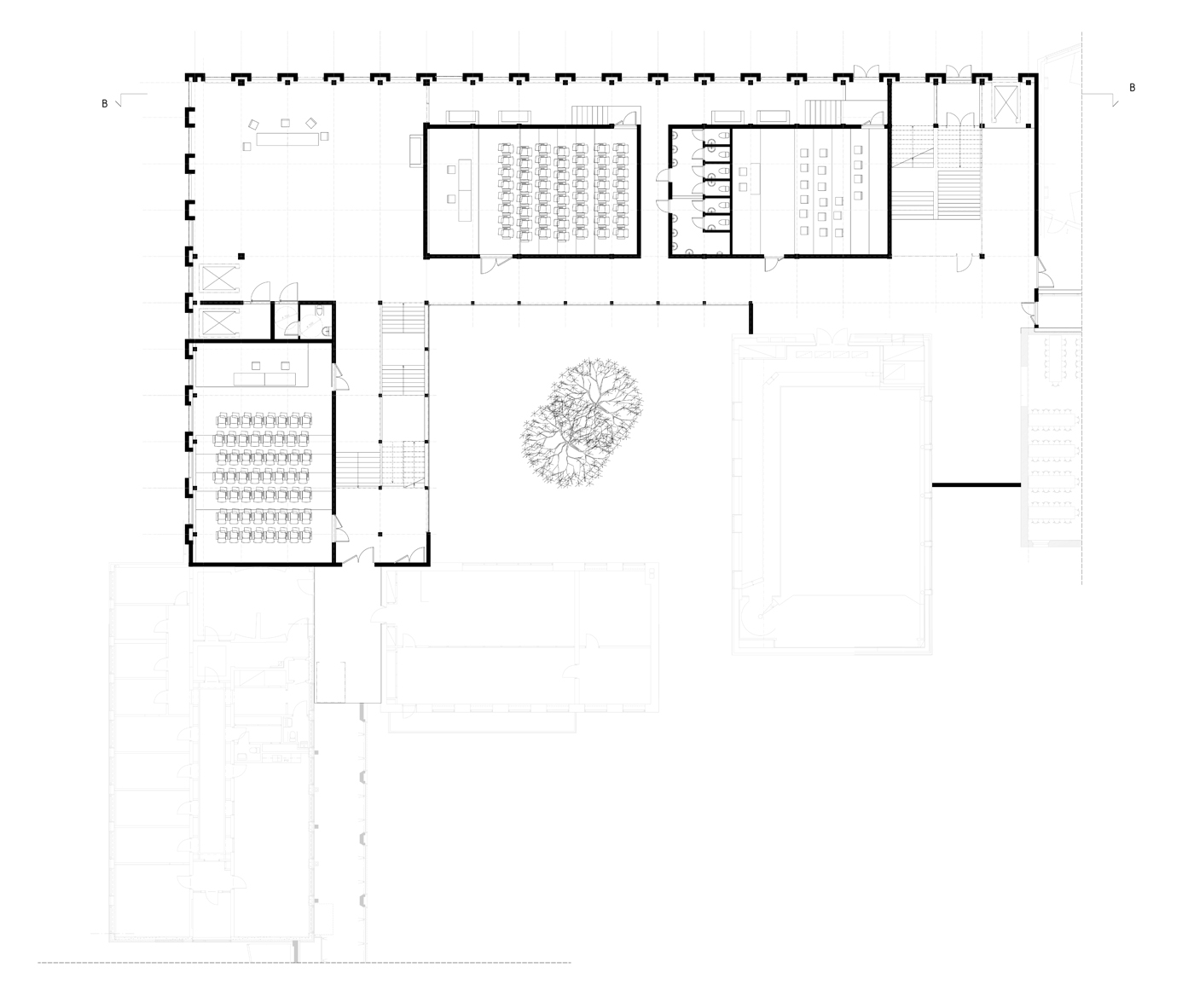
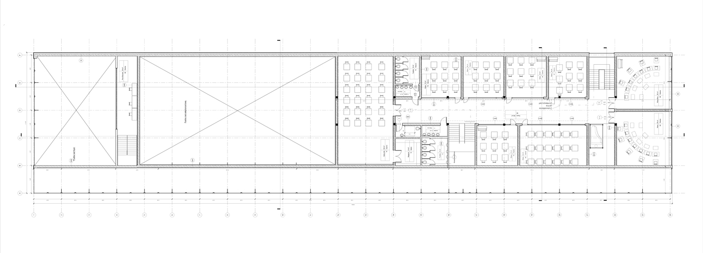
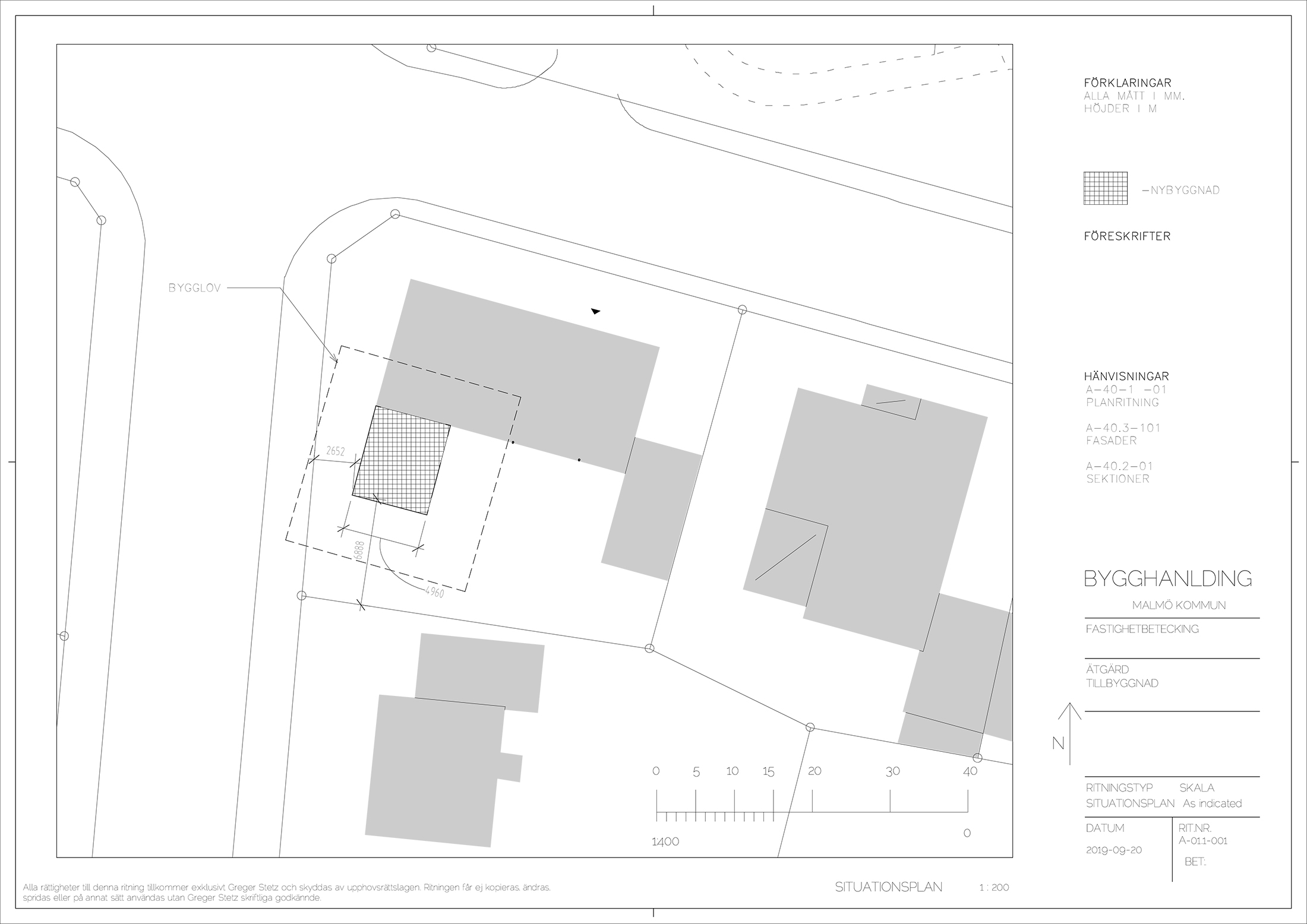
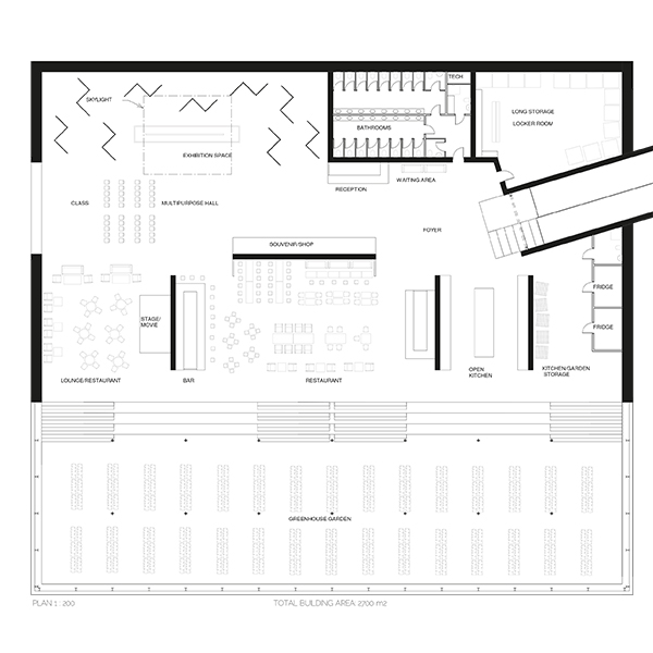
Skaberne i dette projekt lægger stor vægt på det æstetiske udtryk af de eksisterende bygninger, når de nye bygninger på domkirkebjerget skal udformes. Dette samtidig med, at vi forsøger at imødekomme organisationens stræben efter at forene alle bygninger til en sammenhængende anlæg. Disse to forudsætninger skaber en udfordrende opgave. For at imødekomme disse ønsker vil vi bevare området i dets nuværende form så vidt muligt, både hvad angår bygninger og træer. En lys, transparent konstruktion, der blidt berører kirken, foreslås for at forbinde bygningerne. Den nye konstruktion er tænkt som en forlængelse af kirken. Bygningen (1) er designet som en moderne arkitektonisk fortolkning af kirkens gotiske stil. Kirken forlænger således sit rum med et moderne arkitektonisk sprog. Når tiderne ændrer sig, ændres sproget også, men visse dele består gennem tiderne. Bygning (1) vil have forskellige funktioner såsom reception, kapel og opholdsrum. Syd for indgangen foreslår vi, at bygningen skal rumme menigheden, stiftet og søndagsskolen. Bygningen vil blive placeret på et område, der i dag ikke har store træer, hvilket betyder, at de fleste eller alle træer kan bevares. Placeringen kræver nedrivning af en eksisterende mindre bygning. Sammen med de øvrige eksisterende bygninger vil den nye bygning skabe et åbent rum med plads til flere midlertidige parkeringspladser til korttidsparkering. Bygning (2) vil huse en forsamlingshal, der belyses med vinduer og lys ovenfra. Bygningens facade vil være beklædt med mursten for at skabe en dialog på et moderne arkitektonisk sprog med de nuværende bygninger. Farvetonen på bygningen kan variere lidt, men tonerne vil blive taget fra samme palet. Bygningens volumen er tilpasset terrænet, som vises i perspektiver og sektioner. Vi er ivrige efter at udforske mere af bygningens arkitektoniske form. På østsiden ved siden af Djäknegården foreslår vi en ny bygning, der skal fungere som en ny indgang til skolen og et antal mødelokaler. Desuden vil kælderen have plads til drift og centrallager, og på plan -1 vil der være parkering. En tunnel under jorden foreslås for at skabe forbindelse til kirken. Gennemførelsen af denne løsning kræver en geologisk undersøgelse, men sandsynligvis vil boring af tunnelen være den bedste metode. Det ser ud til, at klipper udgør størstedelen af jordforholdene. Alternativt kan varer bæres til den nordlige indgang. Trafikken løses på to måder. Der vil være en ny åben plads mellem nye og eksisterende bygninger, hvor der kan være parkering, og større køretøjer som busser kan standse. Dette område kan også bruges til arrangementer som bryllupper. I bygningen mod Djäknegården vil leverancer og varemodtagelse finde sted, og på niveau 0 vil der være parkering for personbiler. Derudover foreslår vi, at nogle af rummene i Roggeborgen skal bruges som mødelokaler og koncertsal. Ifølge programmet for biblioteksaktiviteter er kun etage to og dele af etage tre nødvendige, mens resten af lokalerne kan fungere perfekt som mødelokaler.